Skip to main content
Loading...

Product description

Introducing our Garden Cube Project - a cozy retreat designed for relaxation and comfort right in your backyard.

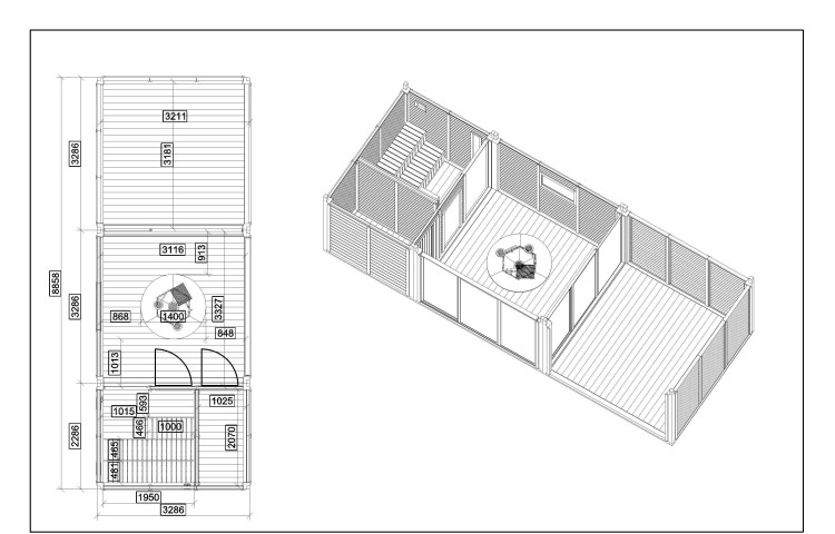
This practical design features three interconnected cubes, creating a versatile space for various activities while focusing on the soothing sauna experience. Discover four separate areas within the Garden Cube, including a snug sauna room (2 x 2 m), a handy shower room (1 x 1 m), a roomy grilling area (3 x 3 m), and a comfortable lounge area (3 x 3 m).

CONSTRUCTIONS:
Built with care and durability in mind, the Garden Cube features three units of garden cube frames made from spruce, ensuring long-lasting quality. Equipped with roof panels featuring a self-adhesive bitumen membrane, providing reliable protection against the elements for enduring durability.

Enjoy the flexibility of various full panel walls, allowing you to customize your Garden Cube according to your needs.

Enhance the ambiance with one wooden tempered glass wall for added style, along with three sunscreen walls and three sunscreen walls with glass for privacy and natural light.

Improve functionality with specialized elements such as insulated walls with small windows (180x1200 and 200x200), a standard wall with an opening window (880x510), and a full glass wall Alutech (1 m) for a seamless indoor-outdoor experience.

Enjoy easy access to your Garden Cube sanctuary with sliding door systems from Alutech, available in 2 m (2000x2200) and 3 m (3000x2200) sizes for smooth operation.

OTHER FEATURES:
To ensure privacy and comfort there are insulated wall with a tempered glass door for the sauna room and a wall with a wooden door for the shower room.

This Garden Cube also includes insulated roof panels over the sauna room, two sauna benches crafted from durable deciduous wood, a convenient step stair, and an inside grill featuring cooking platforms and a surrounding table for culinary delights.

Elevate your outdoor entertainment with our Garden Cube Project. Whether you're hosting a gathering with friends, enjoying a solo sauna session, or simply lounging in the hot tub, this space provides the perfect blend of luxury and comfort.

Timber Spruce
Shape Rectangle
Total height 2853mm
External dimension 8858 x 3286mm
4 spaces inside: a sauna room (2 x 2 m); a shower room (1 x 1 m); grilling area (3 x 3 m); lounge area (3 x 3 m);
3 units garden cube frames from spruce 3 x 2 m (1 pc) and 3 x 3 m (2 pcs);
Roof panels with self-adhesive bitumen membrane;
5 pcs of standard full panel walls;
2 pcs of standard insulated full panel walls;
2 pcs of inside insulated full panel walls;
1 pc of wooden tempered glass wall (inside);
3 pcs of sunscreen wall;
3 pcs of sunscreen wall with glass;
1 pc of insulated wall with small window (180x1200);
1 pc of insulated wall with small window (200x200);
1 pc of standard wall with opening window (880x510);
1 pc of full glass wall Alutech 1 m (inside);
1 pc of sliding doors system Alutech 2 m (2000x2200);
1 pc of sliding doors system Alutech 3 m (3000x2200);
1 pc of insulated wall with tempered glass door for sauna room;
1 pc of wall with wooden door for shower room (without window);
Insulated roof panels over the sauna room;
2 sauna benches from deciduous wood + one step stair;
Inside grill with the cooking platforms and a table around the grill;
Adjustable chimney with extension;

AUTOMATIC MACHINE SPRAY TECHNOLOGY
Benefits

One of the main and most obvious benefits of using a paint machine is the speed and flexibility at which we can suggest our painting service for all of our products. A spray paint machine can get the work done faster and more consistently than manually painting. While the machine works faster, it improves quality too – sprayers produce an even coat of paint, leaving a high-quality finish.
With our painting service from now, we can suggest to our client maximum flexibility! Not assembled products such as Grill cabins, Pavilions, Camping pods, and other products of any size you can order painted too!

PROFESSIONAL SPRAY

The high-quality preservative finish is professionally spray applied in the factory to three sides of the wood. The product is treated in your choice of color. You can choose two colors for one product: one for almost all product details and another for finishing details.

STAIN | PAINT
Which type of paint should I Use?

Properly painting and impregnating is one of the most important things to consider when thinking about how to extend your product's lifetime.
Paint and natural wood finish instantly spruce up the aesthetics of your product.
The decision you will need to make is if you want to use a water-based wood stain or paint. Both will offer you UV protection. The wood stains will allow the texture of the
wood to show through and many are now available in a vast range of colors, however, paints will give you an intensive color, but will cover the grain and texture of the wood.

 

 

"Premium" 6-corner grill and chimney

Standard 6-corner Grill and Chimney

Electric heater Harvia "Club" K15G, 15 kw + Harvia Xenio CX170 (14 - 24 m3)

Electric heater Harvia "Club", 13.5 kw + Harvia Xenio CX170 (11-20 m3)

Electric Heater Harvia Leged PO165, 16.5kW + Harvia Xenio CX170 (16-35 m3)

Wood burning heater Harvia 26 Pro, 26.6 kw (10 - 26 m3)

Wood burning heater Harvia 36, 31 kw (14 - 36 m3)

Wood burning heater Harvia Pro 20, 24 kw (8-20 m3)

Wood burning heater Harvia SL 20 (outside feeding), 24.1 kw (8-20 m3)

Exterior Painting

The high-quality preservative finish is professionally spray applied in the factory to one side of the wood. The product is treated in your choice of color.

Exterior wood stain colors Exterior wood stain colors
Exterior wood paint colors Exterior wood paint colors

Ceiling Lamp

Grill cover

Table And Benches SET

Grill table safety fence*

Firewood ring

Bucket + Ladle Duo (White)

Wooden Bucket

The Bucket + Ladle duo (Black)

Clothes Hanger

Head Rest

Heater Safety Fence for Electric Heaters

Heater Safety Fence for Woodburning Heaters

Sauna Light

Sauna Light Cover

Thermometer - Hydrometer

Water Tank For Woodburning Heaters

Wooden Ladle

Things to note when using the product:

  • Products that are used for staying overnight should be equipped with a smoke alarm and an extinguisher;
  • The product owner is responsible for the security and should work out a rescue plan for the camping site;
  • Remember that using heating appliances or temporary camping stoves isn‘t just a fire risk, but a risk of carbon monoxide poisoning as well. 
     

MAINTENANCE. You should not forget that wood is a natural material, it changes move depending on weather conditions.  Large and small cracks, color tone differences and changes, as well as a changing structure of wood are not errors, but a result of wood growing and a feature of wood as a natural material. Natural wood (not impregnated) becomes greyish after having been left untouched for a while and can be turned blue and become mouldy. You should immediately process them with wood impregnations to protect the wooden details of our produced products. 

  • Like any our product, our produced furniture’s needs to be looked after and processed with a wood impregnation agent or painted if you want it to last for years. Regular cleaning of your furniture is necessary to prevent mould. General warm soapy water is enough if done regularly;
  • If necessary, outside doors must be adjusted by the customer;
  • If you do not use your Product often we highly recommend to use the installation of our vent to stop condensation;
  • If you find a sap pocket open during the life of your Product - you can allow it to dry naturally and then cut the sap off with a blade.